ул. Семёнова, 2, Минск, Ленинский район
Описание
Аренда помещения под офис в комплексе зданий по адресу ул. Семёнова, 2. На фото — все без отделки и до ремонта.
Скачать презентацию по аренде на Семёнова, 2.
Идет прием заявок на аренду помещений:
- еще можем учесть ваши пожелания по отделке и перепланировкам (для площадей от 500м2)
- еще свободны ангары под офисы, склады и производства на 1 этаже с отдельным входом с улицы (от 40 до 6000м2)
Транспорт, как доехать, где припарковаться?
- большая закрытая территория
- есть ЖД пути на территорию
- есть аренда машиноместа на территории
- 4 мин. пешком до Минск Мира
- 4 остановки транспорта в пределах 4 минут ходьбы
- доступ на территорию и в здания 24-7, без выходных
А как там для фур и большегрузов?
- на территорию может заехать фура или большегруз, дорога широкая и нет непонятных перекрестков, склонов и пересечений с жилой зоной
- есть также жд пути, их можете обновить и по доп. согласованию с БЖД сделать заезд поездов прямо к складу, в том числе можно сделать таможенный склад
Какие дополнительные помещения есть и под что их можно снять?
- от 50 до 6 000 кв.м.
- коммерческие (т.е. нежилые) помещения свободного назначения
- т.е. под что захотите, под то и можно снять
- склады отапливаемые и неотапливаемые
- производства отапливаемые и неотапливаемые
- с подводом канализации и без
- открытые площадки
- СТО
- услуги
- офисы
- если у вас какой-то более специфический бизнес или потребности по коммуникациям, лучше уточните возможность размещения заранее у менеджера (контакты внизу страницы)
Коммуникации?
- с отоплением и без отопления
- вода и сан.узлы
- электричество
Что есть рядом?
- рядом улицы:
- Аэродромная
- Маяковского
- Денисовская
- Воронянского
- Южная магистраль
- в 5 мин. Минск Мир, где можно покушать, сходить на кофе и пр.
Остались вопросы?
- Пишите, звоните, оставляйте заявки! Будем рады ответить 🙂 По всем вопросам можете звонить по контактным телефонам менеджера, ведущего этот объект (внизу страницы).
- Если вы хотите, чтобы вам показали все свободные и освобождающиеся для аренды помещения в этом здании, вы можете позвонить и договориться о времени, которое было бы для вас удобно. Либо оставить заявку здесь на сайте.
Адрес: ул. Семёнова, 2
Город: Минск
Район: Ленинский район
Область: Минская область
Почтовый индекс: 220089
Страна: Беларусь
Открыть в Google Картах Код объекта: 37894
Стоимость аренды помещения: 1 607 BYN BYN в месяц
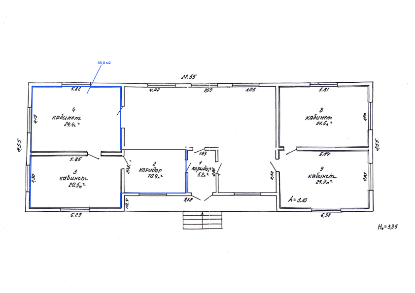
Площадь: 55,80 м2
Площадь здания: 6 000,00 м2
Этаж: 1
Стоимость аренды 1 кв.м. / месяц:: 28,8 BYN
НДС: с НДС
Год постройки: 2024
отопление
вход с улицы
open space
электричество
доступ 24/7
Свяжитесь со мной
Договориться о показе?

















