fbpx
нажмите, чтобы включить масштабирование
searching...
Мы не нашли никаких результатов
открыть карту
Тип карты Дорожная карта спутник Гибридный местность Мое местонахождение Развернуть
Расширенный поиск

0 BYN - 100 000 BYN

Дополнительные параметры поиска
Мы нашли 0 Результаты. Посмотреть Результаты
Расширенный поиск

0 BYN - 100 000 BYN

Дополнительные параметры поиска
мы нашли 0 Результаты
Результаты поиска

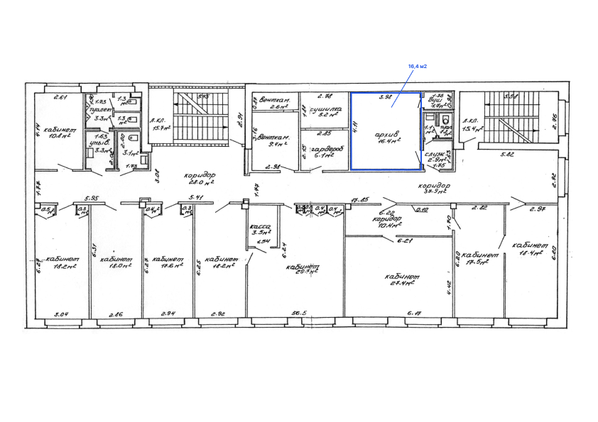
Аренда склада 16,4 кв.м. — пер. 1-й Твердый, 11, Минск

354 BYN / месяц
помещение

Описание

Информация о здании, фото территории и фасада — комплекс производственно-складских и офисных помещений по адресу пер. 1-й Твердый, 11.

Аренда склада недалеко от ботанического сада в Первомайском районе. Собственная закрытая большая парковка. Удобные пути подъезда. Круглосуточная охрана. Здание расположено в 10 мин. от ст. метро Академия Наук.

Удобства: 

  • Электричество
  • Освещение
  • Стеллажи для хранения
  • 2 этаж
  • Вход с коридора
  • Круглосуточный доступ
  • Своя закрытая парковка

В здании на территории есть сан.узел. Территория охраняется круглосуточно, есть видеонаблюдение.

Аренду предоставляем напрямую: без агентств и посредников. Компания является не только собственником всех сдаваемых в аренду помещений, но и застройщиком.

По вопросам аренды можете звонить по телефонам, указанным внизу страницы (телефон менеджера, который отвечает за объект). Если вы желаете, чтобы вам показали все свободные и освобождающиеся для аренды помещения, необходимо позвонить и заранее предупредить о времени, которое было бы для вас удобно.

Также на территории по этому адресу вы можете снять офисы, складские и производственные помещения и открытые площадки для хранения (склады без крыши, под хранение автомобилей либо техники). По этому адресу все склады являются неотапливаемыми.

Адрес: пер. 1-й Твердый, 11
Город:
Почтовый индекс: 220037
Страна: Беларусь
Открыть в Google Картах
Код объекта: 29482
Стоимость аренды помещения: 354 BYN / месяц
Площадь: 16,40 м2
Этаж: 2
Комнат: 1
Стоимость аренды 1 кв.м. / месяц:: 21,6 BYN
НДС: с НДС
без отопления
электричество
доступ 24/7

Свяжитесь со мной

Договориться о показе?

Отзыв на недвижимость

Необходимо авторизоваться чтобы опубликовать отзыв

Похожие объявления

Аренда
помещение

Аренда помещения 7,6 кв.м. по адресу пер. 1-...

205 BYN / месяц
Информация о здании, фото территории и фасада — комплекс производственно-складских и офисных помещений по адр [Больше]
Информация о здании, фото территории и фасада — комплекс производственно-складских и офисных помещений по адр [Больше]
11 7,60 м2подробнее
Аренда
помещение

Аренда помещения 210,73 кв.м. по ул. Хоружей...

6 069.02 BYN / месяц
Хотите снять в аренду складское помещение с удобной парковкой? Плюсы аренды? Круглосуточный доступ Свободная планир [Больше]
Хотите снять в аренду складское помещение с удобной парковкой? Плюсы аренды? Круглосуточный доступ Свободная планир [Больше]
2 210,73 м2подробнее
Аренда
помещение

Аренда помещения 44,54 кв.м. по ул. Хоружей,...

1 282.75 BYN / месяц
Хотите снять в аренду складское помещение с удобной парковкой? Плюсы аренды? Круглосуточный доступ Свободная планир [Больше]
Хотите снять в аренду складское помещение с удобной парковкой? Плюсы аренды? Круглосуточный доступ Свободная планир [Больше]
2 44,54 м2подробнее
Аренда
помещение

Аренда помещения 10,8 кв.м. по ул. Хоружей, ...

311.04 BYN / месяц
Хотите снять в аренду складское помещение с удобной парковкой? Плюсы аренды? Круглосуточный доступ Свободная планир [Больше]
Хотите снять в аренду складское помещение с удобной парковкой? Плюсы аренды? Круглосуточный доступ Свободная планир [Больше]
2 10,80 м2подробнее

Сравнение объектов