fbpx
нажмите, чтобы включить масштабирование
searching...
Мы не нашли никаких результатов
открыть карту
Тип карты Дорожная карта спутник Гибридный местность Мое местонахождение Развернуть
Расширенный поиск

0 BYN - 100 000 BYN

Дополнительные параметры поиска
Мы нашли 0 Результаты. Посмотреть Результаты
Расширенный поиск

0 BYN - 100 000 BYN

Дополнительные параметры поиска
мы нашли 0 Результаты
Результаты поиска

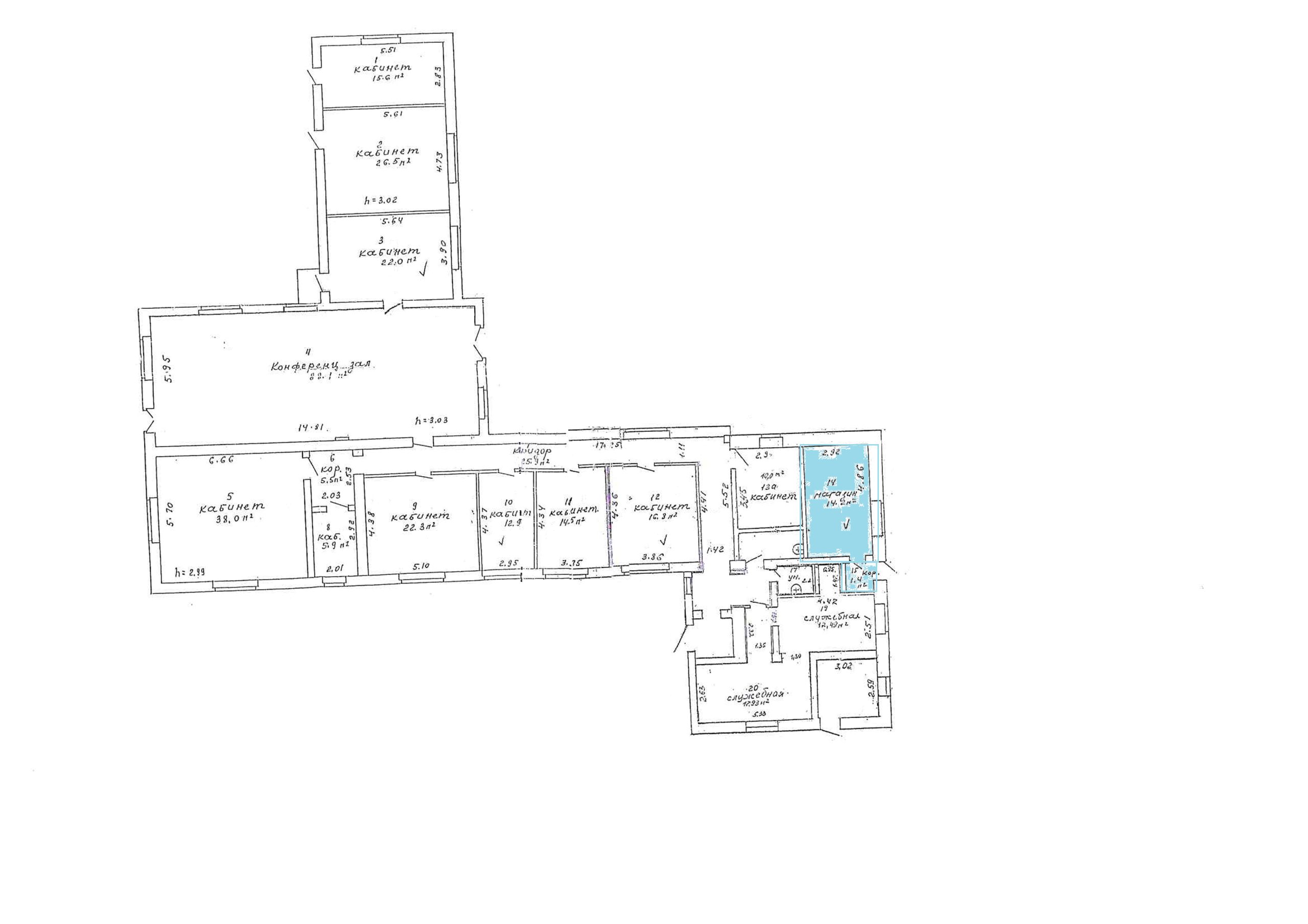
Аренда помещения 15,6 кв.м. — пер. Северный, 13/1, Минск

561.60 BYN / месяц
пер. Северный, 13, Минск, Московский район
2424
помещение

Описание

Информация о здании, фото территории и фасада — комплекс производственно-складских и офисных помещений по адресу пер. Северный, 13.

Аренда помещения в самом центре города по адресу пер. Северный, 13. Собственная парковка. Удобные пути подъезда. Круглосуточная охрана и контроль доступа по пропускам. Здание располагается в 5 мин. от ст. метро пл. Ф.Богушевича и в 10 мин. от ст. метро пл. Ленина — напротив театра муз.комедии (угол пересечения пр.Дзержинского и ул.К.Цеткин). Для питания прямо на территории есть магазин.

В здании есть сан.узел. Территория охраняется круглосуточно, есть видеонаблюдение.

Аренду предоставляем напрямую: без агентств и посредников. Компания является не только собственником всех сдаваемых в аренду помещений, но и застройщиком. В помещении проведен косметический ремонт.

По вопросам аренды можете звонить по телефонам, указанным в паспорте помещения. Если вы желаете, чтобы вам показали все свободные и освобождающиеся для аренды помещения, необходимо позвонить и заранее предупредить о времени, которое было бы для вас удобно.

Также на территории по этому адресу вы можете снять складские и производственные помещения и открытые площадки для хранения (склады без крыши, под хранение автомобилей либо техники).

Адрес: пер. Северный, 13
Город:
Почтовый индекс: 220036
Страна: Беларусь
Открыть в Google Картах
Код объекта: 26288
Стоимость аренды помещения: 561.60 BYN / месяц
Площадь: 15,60 м2
Этаж: 1
Комнат: 1
Стоимость аренды 1 кв.м. / месяц:: 36 BYN
НДС: с НДС
отопление
вход с улицы
электричество
доступ 24/7
Подробнее

Юлия

менеджер по аренде

Свяжитесь со мной

Договориться о показе?

Отзыв на недвижимость

Необходимо авторизоваться чтобы опубликовать отзыв

Похожие объявления

Аренда
помещение

Аренда помещения 61,9 кв.м. — пер. Сев...

1 782 BYN / месяц
Информация о здании, фото территории и фасада — комплекс производственно-складских и офисных помещений по адр [Больше]
Информация о здании, фото территории и фасада — комплекс производственно-складских и офисных помещений по адр [Больше]
11 61,90 м2подробнее
Аренда
помещение

Аренда офиса 44,1 кв.м. по ул. Кальварийская...

1 102 BYN кв.м. / месяц
Хотите снять в аренду отапливаемое помещение под склад и производство? Презентации? презентация по аренде складов и [Больше]
Хотите снять в аренду отапливаемое помещение под склад и производство? Презентации? презентация по аренде складов и [Больше]
3 44,10 м2подробнее
Аренда
помещение

Аренда офиса 179,94 кв.м. по ул. Кальварийск...

4 498 BYN кв.м. / месяц
Хотите снять в аренду отапливаемое помещение под склад и производство? Презентации? презентация по аренде складов и [Больше]
Хотите снять в аренду отапливаемое помещение под склад и производство? Презентации? презентация по аренде складов и [Больше]
3 179,94 м2подробнее
Аренда
помещение

Аренда офиса (open space) 18 кв.м. по ул. Хо...

990 BYN / месяц
Здание: Круглосуточный доступ Закрытая парковка (1-ый час парковки бесплатно, удобно для клиентов и заезда такси) О [Больше]
Здание: Круглосуточный доступ Закрытая парковка (1-ый час парковки бесплатно, удобно для клиентов и заезда такси) О [Больше]
1 18,00 м2подробнее

Другие помещения - Комплекс зданий — пер. Северный, 13

Аренда склада 80,6 кв.м. — пер. Северный, 13, Минск
Категория: Склад,
Дополнительно: ,
Комнат: ,
Площадь: 80,60 м2
Аренда склада 53,30 кв.м. — пер. Северный, 13, Минск
Категория: Склад,
Дополнительно: ,
Комнат: 1,
Площадь: 53,30 м2
Аренда склада 525,8 кв.м. — пер. Северный, 13, Минск
Категория: Склад,
Дополнительно: ,
Комнат: ,
Площадь: 525,80 м2
Аренда помещения под производство 67,6 кв.м. — пер. Северный, 13, Минск
Категория: Производство,
Дополнительно: ,
Комнат: ,
Площадь: 67,60 м2
Аренда помещения под производство 19,5 кв.м. — пер. Северный, 13, Минск
Категория: Производство,
Дополнительно: ,
Комнат: ,
Площадь: 19,50 м2
Аренда офиса 47,08 кв.м. — пер. Северный, 13, Минск
Категория: Офис,
Дополнительно: ,
Комнат: 1,
Площадь: 47,08 м2
Аренда офиса 12,13 кв.м. — пер. Северный, 13, Минск
Категория: Офис,
Дополнительно: ,
Комнат: 1,
Площадь: 12,13 м2
Аренда офиса 24,1 кв.м. — пер. Северный, 13, Минск
Категория: Офис,
Дополнительно: ,
Комнат: 1,
Площадь: 24,10 м2
Аренда офиса 12,91 кв.м. — пер. Северный, 13/5, Минск
Категория: Офис,
Дополнительно: ,
Комнат: 1,
Площадь: 12,91 м2
Аренда офиса 21,86 кв.м. — пер. Северный, 13/5, Минск
Категория: Офис,
Дополнительно: ,
Комнат: 1,
Площадь: 21,86 м2
Аренда помещения 61,9 кв.м. — пер. Северный, 13, Минск
Категория: Офис,
Дополнительно: ,
Комнат: 1,
Площадь: 61,90 м2
Аренда офиса 18,23 кв.м. — пер. Северный, 13/5, Минск
Категория: Офис,
Дополнительно: ,
Комнат: ,
Площадь:

Сравнение объектов