ул. Кальварийская, 33, Минск, Фрунзенский район
Описание
Хотите снять в аренду отапливаемое помещение под склад или производство?
Возможна аренда от 300 до 10 000 кв.м. в комплексе зданий на Кальварийской у метро.
Презентации?
Особенности?
- Круглосуточный доступ
- Ремонт здания 2022 г.
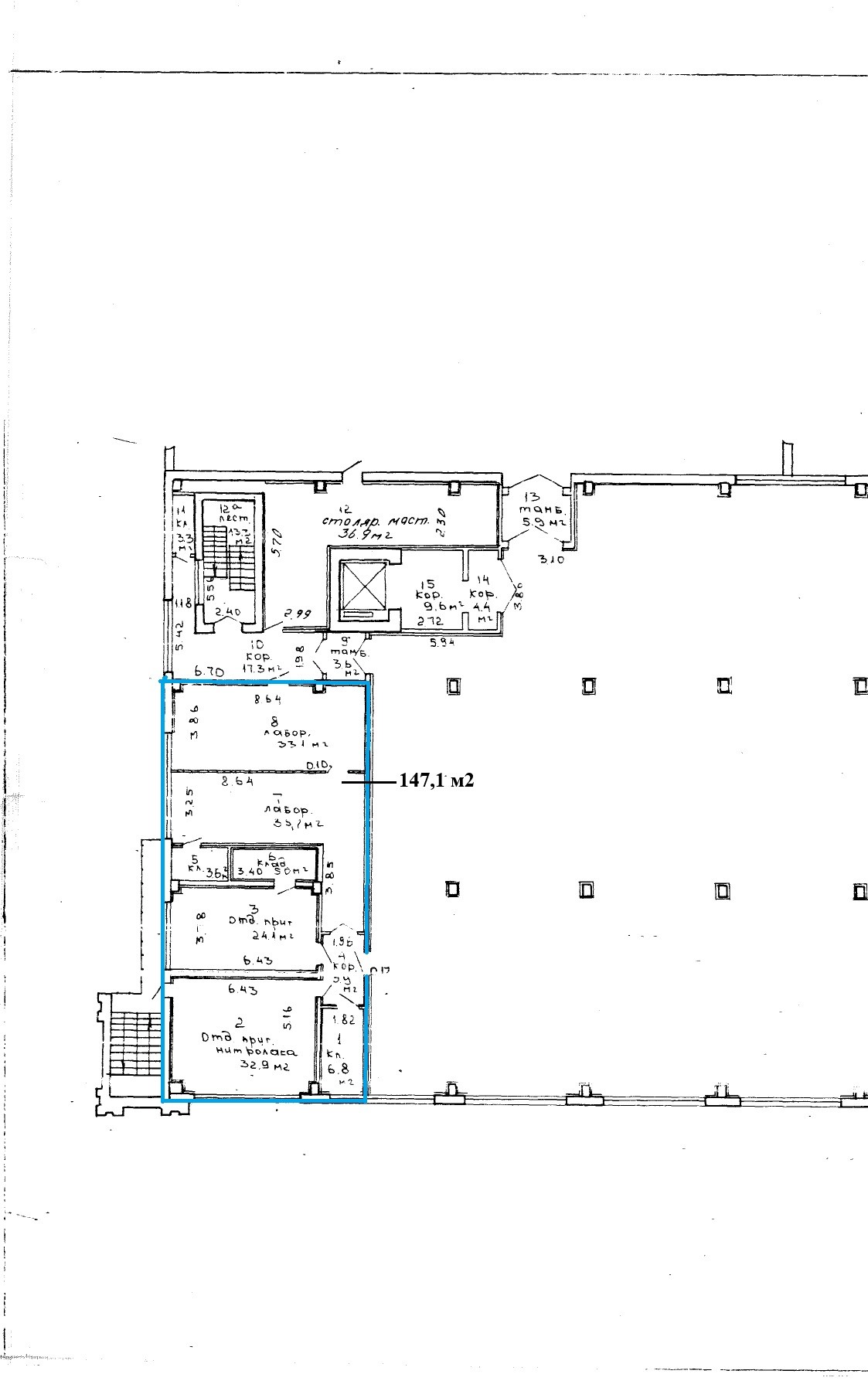
- Свободная планировка (open space, несущие колонны и несколько выделенных кабинетов на каждом этаже — см. планы ниже)
- Высокие потолки (4,3 м.), можно установить любые стеллажи и оборудование
Коммуникации?
- вода и сан. узлы на этаже
- отопление
- электричество и свет (до 1Мвт)
Что рядом?
- ТЦ Корона
- метро Молодежная
- жд станция Минск-Северный
- кафе ПитСтоп, кафе Ежедневник, боулинг и пр.
- ул. Клары Цеткин
- ул. Тимирязева
- ул. Кальварийская
- проспект Машерова / 1 кольцо
- пер. Домашевский
А как будет выглядеть?
- Отделка фасада уже закончена, см. фото объекта (или можете проехать мимо и посмотреть). А можете глянуть на презентацию нашего законченного проекта здания на ул. Хоружей, 25 — отделка до и после. Будет так же 🙂
- Можете позвонить нашему менеджеру (см. контакты внизу страницы) и она с удовольствием проведет вам экскурсию и по текущему зданию, и по другим нашим похожим проектам (ул. Пинская, 28, ул. Захарова, 42, ул. Старовиленская, 100/7 и тд)
Есть вопросы?
- Звоните, пишите, будем рады ответить
Адрес: ул. Кальварийская, 33
Город: Минск
Район: Фрунзенский район
Область: Минская область
Почтовый индекс: 220004
Страна: Беларусь
Открыть в Google Картах Код объекта: 34288
Стоимость аренды помещения: 3 177 BYN кв.м. / месяц
Площадь: 147,10 м2
Площадь здания: 10 000,00 м2
Этаж: 3
Стоимость аренды 1 кв.м. / месяц:: 21,6 BYN
НДС: с НДС
Год постройки: 2022
отопление
open space
свой с/у в помещении
электричество
вода
доступ 24/7
Свяжитесь со мной
Договориться о показе?













