fbpx
нажмите, чтобы включить масштабирование
searching...
Мы не нашли никаких результатов
открыть карту
Тип карты Дорожная карта спутник Гибридный местность Мое местонахождение Развернуть
Расширенный поиск

0 BYN - 100 000 BYN

Дополнительные параметры поиска
Мы нашли 0 Результаты. Посмотреть Результаты
Расширенный поиск

0 BYN - 100 000 BYN

Дополнительные параметры поиска
мы нашли 0 Результаты
Результаты поиска

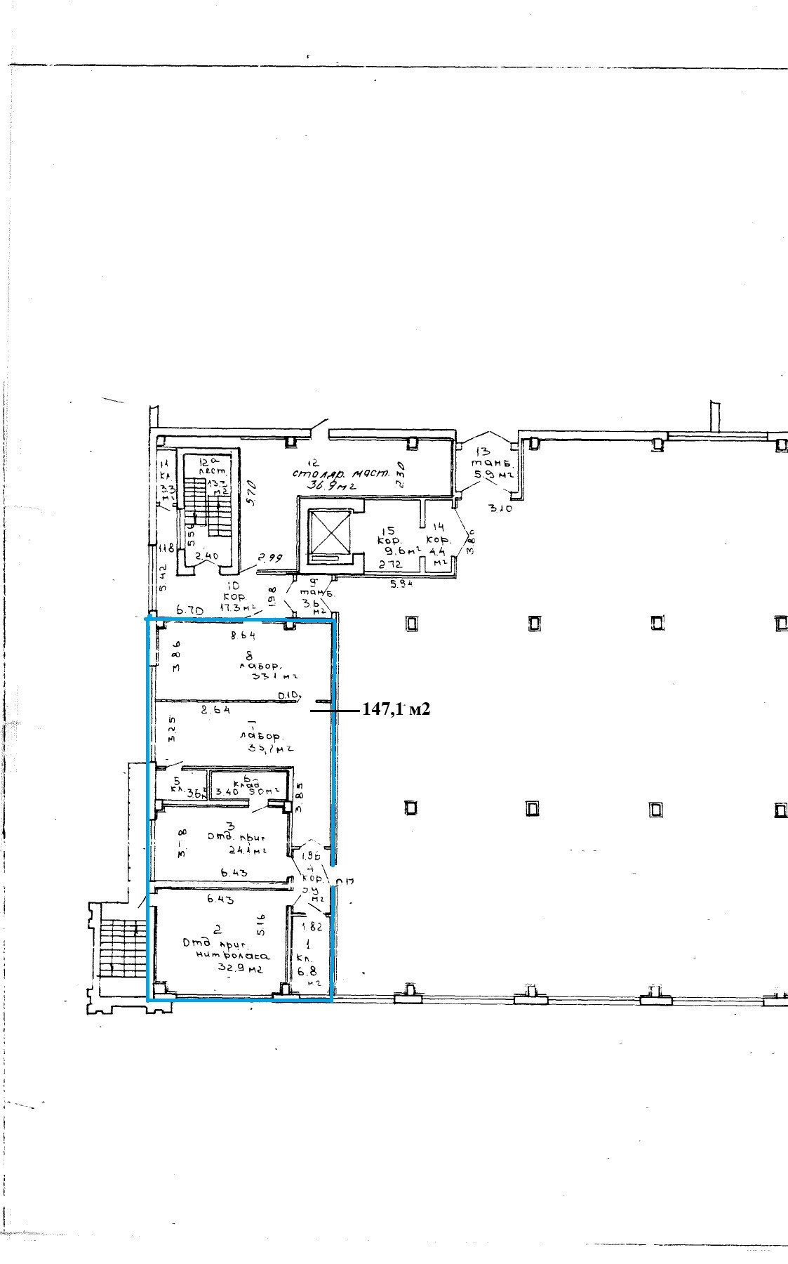
Аренда офиса площадью 147,1 кв.м. по ул. Кальварийская, 33 в Минске

3 706.90 BYN кв.м. / месяц
ул. Кальварийская, 33, Минск, Фрунзенский район
9912
помещение

Описание

Хотите снять в аренду офис?

Возможна аренда от 300 до 10 000 кв.м. в комплексе зданий на Кальварийской у метро.

Презентации?

Особенности?

  • Круглосуточный доступ
  • Ремонт здания 2022 г.
  • Свободная планировка (open space, несущие колонны и несколько выделенных кабинетов на каждом этаже — см. планы ниже)
  • Высокие потолки (4,3 м.), можно установить любые стеллажи и оборудование

Коммуникации?

  • вода и сан. узлы на этаже
  • отопление
  • электричество и свет (до 1Мвт)

Что рядом? 

  • ТЦ Корона
  • метро Молодежная
  • жд станция Минск-Северный
  • кафе ПитСтоп, кафе Ежедневник, боулинг и пр.
  • ул. Клары Цеткин
  • ул. Тимирязева
  • ул. Кальварийская
  • проспект Машерова / 1 кольцо
  • пер. Домашевский

А как будет выглядеть?

  • Отделка фасада уже закончена, см. фото объекта (или можете проехать мимо и посмотреть). А можете глянуть на презентацию нашего законченного проекта здания на ул. Хоружей, 25 — отделка до и после. Будет так же 🙂
  • Можете позвонить нашему менеджеру (см. контакты внизу страницы) и она с удовольствием проведет вам экскурсию и по текущему зданию, и по другим нашим похожим проектам (ул. Пинская, 28, ул. Захарова, 42, ул. Старовиленская, 100/7 и тд)

Есть вопросы? 

  • Звоните, пишите, будем рады ответить
Адрес: ул. Кальварийская, 33
Город:
Почтовый индекс: 220004
Страна: Беларусь
Открыть в Google Картах
Код объекта: 34251
Стоимость аренды помещения: 3 706.90 BYN кв.м. / месяц
Площадь: 147,10 м2
Площадь здания: 10 000,00 м2
Этаж: 3
Стоимость аренды 1 кв.м. / месяц:: 25.2 BYN
НДС: с НДС
Год постройки: 2022
отопление
open space
свой с/у в помещении
электричество
вода
доступ 24/7

Свяжитесь со мной

Договориться о показе?

Отзыв на недвижимость

Необходимо авторизоваться чтобы опубликовать отзыв

Похожие объявления

Аренда помещения площадью 203,47 кв.м. под о...

5 086.80 BYN / месяц
🏢 Пушкина, 68 — комплекс офисов, складов и производств Офисы • Склады • Производственные помещения • Мастерские Дос [Больше]
🏢 Пушкина, 68 — комплекс офисов, складов и производств Офисы • Склады • Производственные помещения • Мастерские Дос [Больше]
2 203,47 м2подробнее
Аренда
помещение

Аренда офиса 527,7 кв.м. по ул. Кальварийска...

13 298 BYN кв.м. / месяц
Хотите снять в аренду отапливаемое помещение под склад и производство? Возможна аренда от 300 до 10 000 кв.м. в ком [Больше]
Хотите снять в аренду отапливаемое помещение под склад и производство? Возможна аренда от 300 до 10 000 кв.м. в ком [Больше]
3 527,70 м2подробнее
Аренда
помещение

Аренда помещения 206,13 кв.м. по ул. Старови...

10 389 BYN кв.м. / месяц
Хотите снять в аренду помещение? Аренда помещения площадью 206,13 кв.м. Что есть? Круглосуточный доступ Закрытая па [Больше]
Хотите снять в аренду помещение? Аренда помещения площадью 206,13 кв.м. Что есть? Круглосуточный доступ Закрытая па [Больше]
1 206,13 м2подробнее
Аренда
помещение

Аренда помещения 155,6 кв.м. по ул. Старовил...

7 842 BYN кв.м. / месяц
Хотите снять в аренду помещение? Аренда помещения площадью 155,6 кв.м. Что есть? Круглосуточный доступ Закрытая пар [Больше]
Хотите снять в аренду помещение? Аренда помещения площадью 155,6 кв.м. Что есть? Круглосуточный доступ Закрытая пар [Больше]
1 155,60 м2подробнее

Другие помещения - Офисы, склады и производства — ул. Кальварийская, 33 в Минске

Аренда офиса площадью 1006,1 кв.м. по ул. Кальварийская, 33 в Минске
Категория: Офис,
Дополнительно: ,
Комнат: ,
Площадь: 1 006,00 м2
Аренда помещения площадью 1006,1 кв.м. по ул. Кальварийская, 33 в Минске
Категория: Производство, Склад,
Дополнительно: ,
Комнат: ,
Площадь: 1 006,00 м2
Аренда помещения площадью 147,1 кв.м. по ул. Кальварийская, 33 в Минске
Категория: Производство, Склад,
Дополнительно: ,
Комнат: ,
Площадь: 147,10 м2
Аренда офиса площадью 97,66 кв.м. по ул. Кальварийская, 33 в Минске
Категория: Офис,
Дополнительно: ,
Комнат: ,
Площадь: 97,66 м2
Аренда помещения площадью 97,66 кв.м. по ул. Кальварийская, 33 в Минске
Категория: Производство, Склад,
Дополнительно: ,
Комнат: ,
Площадь: 97,66 м2
Аренда помещения площадью 527,7 кв.м. по ул. Кальварийская, 33 в Минске
Категория: Производство, Склад,
Дополнительно: ,
Комнат: ,
Площадь: 527,70 м2
Аренда помещения площадью 2196,6 кв.м. по ул. Кальварийская, 33 в Минске
Категория: Производство, Склад,
Дополнительно: ,
Комнат: ,
Площадь: 2 196,60 м2
Аренда помещения площадью 400,1 кв.м. (2 этаж) по ул. Кальварийская, 33 в Минске
Категория: Производство, Склад,
Дополнительно: ,
Комнат: ,
Площадь: 400,10 м2
Аренда офиса 527,7 кв.м. по ул. Кальварийская, 33 в Минске
Категория: Офис,
Дополнительно: ,
Комнат: ,
Площадь: 527,70 м2

Сравнение объектов