ул. Петруся Бровки, 30/3, Минск, Первомайский район
Описание
Бровки, 30 – комплекс офисов, складов и производств
Офисы • Склады • Производственные помещения • Услуги • СТО
🏢 Доступные форматы помещений
Свободные помещения от 5 до 1 000 м², включая:
- Склады (в т.ч. отапливаемые, неотапливаемые, есть с высокими воротами)
- Офисы и помещения под услуги (с ремонтом и под отделку)
- Производства
- Мастерские и СТО
🔄 Возможна перепланировка и объединение нескольких помещений, которые находятся рядом
📍 Локация
- Адрес: ул. Бровки, 30 (корп. 3)
- 10 минут до центра города
- Удобный выезд на пр. Независимости и 2-е кольцо
- Закрытая территория с заездом для легкового и грузового транспорта
- Парковка на территории
🌟 Преимущества комплекса
- 🏗️ Гибкие площади — от 5 до 1000 м², есть варианты с отдельным входом
- 📐 Свободная и кабинетная планировка
- 🚛 Подъезд для фур и возможность разгрузки с улицы в склады напрямую
- 🕓 Круглосуточный доступ
- 💡 Коммуникации на территории: электричество, отопление вода, вентиляция, подводы под с/у в зависимости от помещения
- 🧱 Возможность размещения склада, офиса и производства в одном месте
- 🔐 Закрытая территория, контроль доступа
- 🛠️ Возможность быстрого въезда (в некоторые помещения можно заехать хоть завтра, уточняйте у менеджера)
- 🏗️ Есть помещения с ремонтом / возможностью сделать под себя
💸 Дополнительные платежи
- Эксплуатационные расходы
- Коммунальные услуги: перевыставляем по потреблению по счётчику, по гос. тарифам
- Парковка: оплата машиноместа
📊 Примеры форматов
- офис + склад на одном этаже
- производственный блок с приёмкой и комнатой персонала
- мастерская, шоурум или сервис с отдельным входом
- креативное пространство с гибкой планировкой
- небольшое производство
📞 Хотите посмотреть вживую? — свяжитесь с нами, покажем в удобное время
Адрес: ул. Петруся Бровки, 30/3
Город: Минск
Район: Первомайский район
Область: Минская область
Почтовый индекс: 220013
Страна: Беларусь
Открыть в Google Картах Код объекта: 43424
Стоимость аренды помещения: 507.50 BYN / месяц
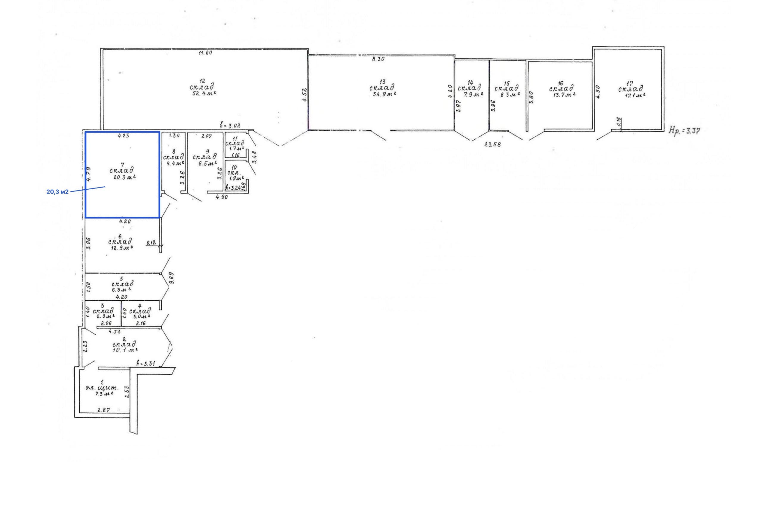
Площадь: 20,30 м2
Площадь здания: 5 000,00 м2
Этаж: 1
Стоимость аренды 1 кв.м. / месяц:: 25 BYN
НДС: с НДС
Год постройки: 2020
отопление
вход с улицы
open space
электричество
вода
доступ 24/7
Свяжитесь со мной
Договориться о показе?








































