fbpx
нажмите, чтобы включить масштабирование
searching...
Мы не нашли никаких результатов
открыть карту
Тип карты Дорожная карта спутник Гибридный местность Мое местонахождение Развернуть
Расширенный поиск

0 BYN - 100 000 BYN

Дополнительные параметры поиска
Мы нашли 0 Результаты. Посмотреть Результаты
Расширенный поиск

0 BYN - 100 000 BYN

Дополнительные параметры поиска
мы нашли 0 Результаты
Результаты поиска

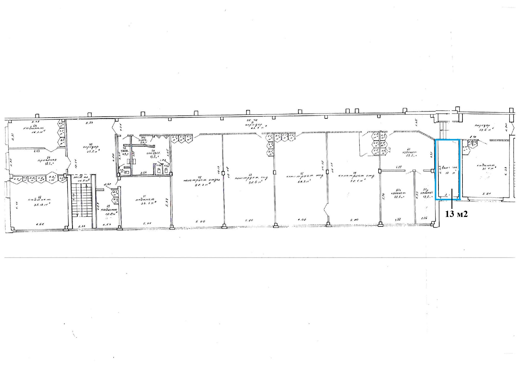
Аренда офиса площадью 13 кв.м.-Пушкина, 68/2

325 BYN / месяц
здание

Описание

🏢 Пушкина, 68 — комплекс офисов, складов и производств

Офисы • Склады • Производственные помещения • Мастерские

Доступные форматы помещений

Свободные помещения в аренду от 5 до 1000 м², включая:

  • Склады (неотапливаемые, с возможностью заезда транспорта)
  • Офисы: часть с готовой отделкой, часть — базовая отделка
  • Производственные помещения: как под лёгкое производство (швейное, упаковка, полиграфия), так и под тяжёлое (сборка, мебель, металлообработка и др.)
  • Мастерские и сервисные помещения

🔄 Возможна перепланировка и объединение соседних помещений

📍 Локация

  • Адрес: ул. Пушкина, 68
  • Удобный заезд и разворот для легкового и грузового транспорта
  • Парковка на территории своя
  • Быстрый выезд на ул. Притыцкого и второе кольцо

🌟 Преимущества комплекса

  • 🏗️ Площади от 5 до 1000 м², можно масштабироваться в пределах площадки
  • 🚪 Часть помещений с отдельным входом
  • 📐 Свободная или кабинетная планировка
  • 💡 Коммуникации: электричество, вода, сан.узлы на этажах
  • 🚛 Заезд транспорта, включая фуры, с возможностью разворота
  • 🔐 Закрытая территория
  • 🕓 Круглосуточный доступ — по согласованию
  • 🛠️ Помещения с готовой отделкой (въезд сразу) и под отделку (с возможностью сделать под себя)

📄 Условия аренды

  • Площади: от 5 м² до 1000 м²
  • Срок аренды: от 3 месяцев

💸 Дополнительные платежи

  • Коммунальные услуги по счётчику
  • Эксплуатационные расходы

📊 Примеры форматов

  • Склад с офисом на одном этаже
  • Производственный блок с комнатой персонала
  • Мастерская или шоурум мебели с отдельным входом
  • Офис под логистику или техслужбу
  • Цех мебельного или металлообрабатывающего производства
  • Архив, кладовая, распределительный пункт

Компания — собственник.
Не все помещения успеваем добавлять в рекламу, если нужно что-то конкретное, чего вы не нашли – напишите менеджеру в телеграм или наберите, она сбросит все, что есть.
Также есть другие объекты: склады и офисы на Хоружей, Старовиленской, Твердом, Северном переулке, Кальварийской и других локациях.
Напишите в Telegram или позвоните — сбросим все свободное и освобождающееся. Контакты — в разделе «Контакты».

Адрес: пр-т Пушкина, 68
Город:
Почтовый индекс: 220073
Страна: Беларусь
Открыть в Google Картах
Код объекта: 43092
Стоимость аренды помещения: 325 BYN / месяц
Площадь: 13,00 м2
Площадь здания: 1 000,00 м2
Этаж: 3
Стоимость аренды 1 кв.м. / месяц:: 25 BYN
НДС: с НДС
Год постройки: 2020
Подробнее

Наталья

менеджер по аренде

Свяжитесь со мной

Договориться о показе?

Отзыв на недвижимость

Необходимо авторизоваться чтобы опубликовать отзыв

Похожие объявления

Аренда
помещение

Аренда помещения 61,9 кв.м. — пер. Сев...

1 782 BYN / месяц
Информация о здании, фото территории и фасада — комплекс производственно-складских и офисных помещений по адр [Больше]
Информация о здании, фото территории и фасада — комплекс производственно-складских и офисных помещений по адр [Больше]
11 61,90 м2подробнее
Аренда
помещение

Аренда офиса 44,1 кв.м. по ул. Кальварийская...

1 102 BYN кв.м. / месяц
Хотите снять в аренду отапливаемое помещение под склад и производство? Презентации? презентация по аренде складов и [Больше]
Хотите снять в аренду отапливаемое помещение под склад и производство? Презентации? презентация по аренде складов и [Больше]
3 44,10 м2подробнее
Аренда
помещение

Аренда офиса 179,94 кв.м. по ул. Кальварийск...

4 498 BYN кв.м. / месяц
Хотите снять в аренду отапливаемое помещение под склад и производство? Презентации? презентация по аренде складов и [Больше]
Хотите снять в аренду отапливаемое помещение под склад и производство? Презентации? презентация по аренде складов и [Больше]
3 179,94 м2подробнее
Аренда
помещение

Аренда офиса (open space) 18 кв.м. по ул. Хо...

990 BYN / месяц
Здание: Круглосуточный доступ Закрытая парковка (1-ый час парковки бесплатно, удобно для клиентов и заезда такси) О [Больше]
Здание: Круглосуточный доступ Закрытая парковка (1-ый час парковки бесплатно, удобно для клиентов и заезда такси) О [Больше]
1 18,00 м2подробнее

Доступные помещения

Аренда офиса площадью 21,9 кв.м.-Пушкина, 68/1
Категория: Офис,
Дополнительно: ,
Комнат: ,
Площадь: 21,90 м2
Аренда гардероба 79,59 кв.м.-Пушкина, 68/1
Категория: Услуги,
Дополнительно: ,
Комнат: ,
Площадь: 79,00 м2
Аренда офиса площадью 19,3 кв.м.-Пушкина, 68/1
Категория: Офис,
Дополнительно: ,
Комнат: ,
Площадь: 19,30 м2
Аренда офиса площадью 21,8 кв.м.-Пушкина, 68/1
Категория: Офис,
Дополнительно: ,
Комнат: ,
Площадь: 21,80 м2
Аренда офиса площадью 20,4 кв.м.-Пушкина, 68/1
Категория: Офис,
Дополнительно: ,
Комнат: ,
Площадь: 20,40 м2
Аренда склада площадью 4,2 кв.м.-Пушкина, 68/1
Категория: Склад,
Дополнительно: ,
Комнат: ,
Площадь: 4,20 м2
Аренда склада площадью 5,9 кв.м.-Пушкина, 68/1
Категория: Склад,
Дополнительно: ,
Комнат: ,
Площадь: 5,90 м2
Аренда помещения площадью 27,1 кв.м. под склад/производство-Пушкина, 68/1
Категория: Производство, Склад,
Дополнительно: ,
Комнат: ,
Площадь: 27,10 м2
Аренда офиса площадью 60,5 кв.м.-Пушкина, 68/2
Категория: Офис,
Дополнительно: ,
Комнат: ,
Площадь: 60,50 м2
Аренда офиса площадью 59,9 кв.м.-Пушкина, 68/2
Категория: Офис,
Дополнительно: ,
Комнат: ,
Площадь: 59,90 м2
Аренда офиса площадью 60,7 кв.м.-Пушкина, 68/2
Категория: Офис,
Дополнительно: ,
Комнат: ,
Площадь: 60,70 м2
Аренда помещения площадью 420,9 кв.м. под офис/склад/производство -Пушкина, 68/2
Дополнительно: ,
Комнат: ,
Площадь: 420,90 м2

Сравнение объектов